Détails du produit
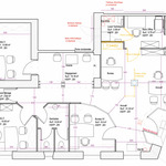
Ref.: VTE VILLA SAID Type de produit: Cession de droit au bail Superficie hab.: 100 m² Superficie totale: 100 m² Etage: RDC Pays: Monaco Quartier: Carré d'Or Immeuble: Villa SaidSitué dans un bel immeuble bourgeois, cet espace professionnel d'environ 100 m² offre une très belle visibilité au cœur d'un quartier très attractif.
Le bien comprend également un petit débarras à l’entresol avec des toilettes. De belles vitrines offrent une visibilité optimale pour ce local destiné à l’exploitation de toute activité commerciale à l’exclusion des activités de bouche. Il s'agit de deux locaux de superficie équivalente qui ont été réunis et ils disposent donc de deux baux distincts qui sont tous les deux à céder.
Une première partie est au prix de 8.000€/mois plus charges.
Une deuxième partie est actuellement louée à 4.856€/mois + charges. Le nouveau montant du loyer sera déterminée en fonction de l'activité exercée.
Possibilité de séparer à nouveau le local.
